Ihr deutscher Immobilienmakler seit über 30 Jahre
am Gardasee

Immobilien Werner Rieger


Gardasee und Umgebung - Villen

zoom

Villa mit gr. Gemeinschaftspool in Calmasino zwischen Bardolino und Lazise

Expose n� 2677
zone: Südufer (Bardolino)
Preis: 595.000

Die Villa befindet sich in leichter und ruhiger Hanglage, ein Paar Autominuten vom See entfernt.

Foto

 
zoom zoom zoom zoom zoom zoom zoom zoom zoom zoom zoom
 

Exposè

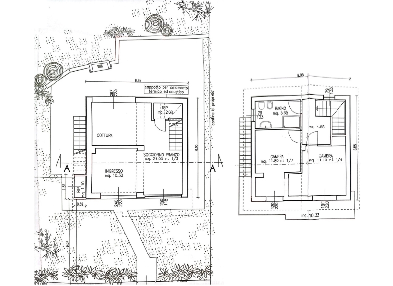
Grundiss


« zurück